Интерьер с обложки: деревянный дом с необычной обстановкой
В светлом элегантном интерьере семейной резиденции ничто не напоминает о том, что дом построен из сосны — это возможно благодаря современным технологиям.
50 фото
Площадь: 914 кв. м
Дом проектировался и строился с нуля архитектурно-строительной компанией «Архивуд». Студия дизайна интерьеров Art Hall присоединилась к проекту на этапе разработки планировочных решений и вела весь комплекс, связанный с интерьерной частью: разработка дизайн-проекта, комплектация интерьера и декорирование.
Двусветное пространство гостиной. Диваны, журнальные столики, дизайн Родольфо Дордони, Minotti (Минотти). Люстра, дизайнеры Роберта Витаделло, Стефано Траверсо, Italamp (Италамп). Ковер изготовлен на заказ по эскизу Елены Лукинской компанией Kulturakovrov. Двусветное пространство гостиной. Диваны, журнальные столики, дизайн Родольфо Дордони, Minotti (Минотти). Люстра, дизайнеры Роберта Витаделло, Стефано Траверсо, Italamp (Италамп). Ковер изготовлен на заказ по эскизу Елены Лукинской компанией Kulturakovrov.
Общий вид дома: он словно вырастает из ландшафта. Крыло слева — крытая терраса с камином и барбекю. Лаконичные формы, обилие стекла, нейтральные природные оттенки — эти приемы найдут свое отражение в интерьере. Дом построен из технологичного СЛТ-бруса «Архивуд» по самым современным технологиям. Общий вид дома: он словно вырастает из ландшафта. Крыло слева — крытая терраса с камином и барбекю. Лаконичные формы, обилие стекла, нейтральные природные оттенки — эти приемы найдут свое отражение в интерьере. Дом построен из технологичного СЛТ-бруса «Архивуд» по самым современным технологиям.
Вид из гостиной на кабинет. В планировке парадных помещений первого этажа элементы анфилады переосмыслены в актуальном сегодня ключе, и это придает пространству особый шик современной загородной резиденции. Библиотека выполнена на заказ компанией «Гарант 100».
Для строительства был выбран лесной участок в небольшом приватном поселке рядом с Москвой, и непростой задачей оказалось вписать объем дома между крупными деревьями. В итоге он гармонично смотрится в природном окружении и при довольно внушительной общей площади не кажется слишком большим. Протяженный первый этаж и небольшой второй, пологие, почти плоские скаты кровель, завершающиеся сильно выступающими свесами-карнизами, огромные панорамные окна, стеклянные ограждения балконов и террас, светло-серые поверхности деревянных стен в сочетании с темно-серым цветом природного камня на фасадах — элегантное архитектурное решение.
Слева зона кухни на первом этаже. Кухня изготовлена на заказ российской компанией Attribute. Светильники над островом, дизайн студии Мамо, Italamp (Италамп). Справа вид из столовой на гостиную. Через широкий открытый портал хорошо просматривается всё пространство общественной зоны. Слева зона кухни на первом этаже. Кухня изготовлена на заказ российской компанией Attribute. Светильники над островом, дизайн студии Мамо, Italamp (Италамп). Справа вид из столовой на гостиную. Через широкий открытый портал хорошо просматривается всё пространство общественной зоны.
Столовая. Обеденный стол и стулья, Costantini Pietro (Костантини Пиетро). Люстры над обеденным столом, дизайнер Эдвард ван Влиет, Italamp (Италамп). Столовая. Обеденный стол и стулья, Costantini Pietro (Костантини Пиетро). Люстры над обеденным столом, дизайнер Эдвард ван Влиет, Italamp (Италамп).
Слева фрагмент холла. Консоль, дизайнер Патрисия Уркиола, Cassina (Кассина). Справа лестница. «Двухмаршевая винтовая лестница — сложная по конструктиву и реализации, — рассказывает Елена Лукинская. — Изначально планировалось сплошное моллированное ограждение (из гнутого стекла) с деревянными перилами. Однако, чтобы придать лестнице более парадный вид, было принято решение добавить латунные балясины и сделать эффектные кожаные перила. Это усложнило процесс реализации: необходимо было предусмотреть скрытые стыковочные элементы деталей». Слева фрагмент холла. Консоль, дизайнер Патрисия Уркиола, Cassina (Кассина). Справа лестница. «Двухмаршевая винтовая лестница — сложная по конструктиву и реализации, — рассказывает Елена Лукинская. — Изначально планировалось сплошное моллированное ограждение (из гнутого стекла) с деревянными перилами. Однако, чтобы придать лестнице более парадный вид, было принято решение добавить латунные балясины и сделать эффектные кожаные перила. Это усложнило процесс реализации: необходимо было предусмотреть скрытые стыковочные элементы деталей».

Казалось бы, достаточно создать в интерьере красивый рефрен фасадам — и всё сложится. Но у хозяев был совсем другой запрос. Они хотели, чтобы пространство дома не выглядело «деревянным». Свой будущий интерьер они видели лаконичным, светлым, в духе современной классики. «Применение безусадочного бруса из северной сосны позволило спрятать за декоративными элементами свойственные деревянному дому конструктивные узлы и детали, — объясняет архитектор Светлана Веселова («Архивуд»). — Эти приемы подчеркивают «недеревянный» характер интерьера, но при этом сохраняется тепло природного материала».
Слева кабинет — уютное пространство для работы и отдыха. Строгая геометрия библиотеки «собирает» его воедино, ей вторит рисунок ковра Kulturakovrov. Библиотека, компания «Гарант 100». Рабочий стол (дизайнеры Людовика и Роберто Паломба), диван (дизайнер Даниэле Ло Скальцо Москери), рабочее кресло (дизайнер Умберто Аснаго), всё — фабрика i4 Mariani (Айфо Мариани). Справа кухня в хозяйском блоке на первом этаже. Колористика этих помещений поддерживает общую палитру интерьера, но она мягче: здесь оттенки молочно-белого, бежевого и натурального орехового цвета. Кухня, Lema (Лема). Стулья, Cattelan Italia (Каттелан Италия). Светильники, Italamp (Италамп). Слева кабинет — уютное пространство для работы и отдыха. Строгая геометрия библиотеки «собирает» его воедино, ей вторит рисунок ковра Kulturakovrov. Библиотека, компания «Гарант 100». Рабочий стол (дизайнеры Людовика и Роберто Паломба), диван (дизайнер Даниэле Ло Скальцо Москери), рабочее кресло (дизайнер Умберто Аснаго), всё — фабрика i4 Mariani (Айфо Мариани). Справа кухня в хозяйском блоке на первом этаже. Колористика этих помещений поддерживает общую палитру интерьера, но она мягче: здесь оттенки молочно-белого, бежевого и натурального орехового цвета. Кухня, Lema (Лема). Стулья, Cattelan Italia (Каттелан Италия). Светильники, Italamp (Италамп).

Спальня в хозяйском блоке на первом этаже. Кресло Gamma Arredamenti (Гамма Арредаменти), портьеры в стилистике японской пейзажной акварели из ткани Zimmer+Rohde (Циммер Роде), ковер, Kulturakovrov. Спальня в хозяйском блоке на первом этаже. Кресло Gamma Arredamenti (Гамма Арредаменти), портьеры в стилистике японской пейзажной акварели из ткани Zimmer+Rohde (Циммер Роде), ковер, Kulturakovrov.
Цокольный этаж — территория развлечений. Здесь спроектировали домашний кинотеатр, также есть бильярд, зона для игры в настольный теннис, бар, винотека и кухня. Два кресла у столика в баре, Poliform (Полиформ). Цокольный этаж — территория развлечений. Здесь спроектировали домашний кинотеатр, также есть бильярд, зона для игры в настольный теннис, бар, винотека и кухня. Два кресла у столика в баре, Poliform (Полиформ).
Дом просторный и светлый, в нем есть всё для комфортной жизни большой семьи — супругов и их троих взрослых сыновей. Центральное пространство дома — двусветная гостиная, вход в которую — через большой холл-прихожую с масштабной, при этом легкой и воздушной винтовой лестницей с ограждением из моллированного (гнутого) стекла. Панорамные окна стирают границу между интерьером и ландшафтом. Рядом с гостиной — столовая и просторная современная кухня с функциональным островом, спрятанная за объемом лестницы. На первом этаже по желанию заказчиков в отдельном крыле дома находится приватная хозяйская территория со своей спальней, мини-гостиной и кухней — такое решение усиливает ощущение уюта в большом доме.
В специально спроектированной стеллажной системе на цокольном этаже располагается обширная коллекция статуэток с изображением Ленина из собрания хозяев. Домашний кинотеатр украшает картина «Сотворение админа» с рамой, стилизованной специально под произведение, центр современного искусства «Кайрос». В специально спроектированной стеллажной системе на цокольном этаже располагается обширная коллекция статуэток с изображением Ленина из собрания хозяев. Домашний кинотеатр украшает картина «Сотворение админа» с рамой, стилизованной специально под произведение, центр современного искусства «Кайрос».

Слева цокольный этаж. Справа зона отдыха. Визуальный акцент — платок в стилистике агитационного текстиля, обрамленный в багет. «Наша студия работает в разных стилях, и мы считаем это огромным преимуществом, — объясняет Елена Лукинская. — Задача профессионала — услышать пожелания заказчика, сделать дизайн в заданном направлении, причем на высшем уровне, качественно, профессионально. Привнести свое видение аккуратно и грамотно. Понять мечту заказчика и воплотить ее в реальность» Консоль, Bonaldo (Бональдо). Ковер, Kulturakovrov. Слева цокольный этаж. Справа зона отдыха. Визуальный акцент — платок в стилистике агитационного текстиля, обрамленный в багет. «Наша студия работает в разных стилях, и мы считаем это огромным преимуществом, — объясняет Елена Лукинская. — Задача профессионала — услышать пожелания заказчика, сделать дизайн в заданном направлении, причем на высшем уровне, качественно, профессионально. Привнести свое видение аккуратно и грамотно. Понять мечту заказчика и воплотить ее в реальность» Консоль, Bonaldo (Бональдо). Ковер, Kulturakovrov.

Отдельным блоком спроектирована спа-зона с бассейном, русской парной и хаммамом. Три блока помещений для сыновей расположены на втором этаже. Там же спортзал — в помещении с балконом. В просторном цокольном этаже — пространства для отдыха: бильярдная с барной зоной, кинотеатр, детская игровая зона. Первоначально задумали сделать большую крытую террасу с камином, объединяющую основные помещения первого этажа и помещения бассейна, а вблизи дома — зону барбекю. Но в процессе проектирования было решено включить эту террасу в теплый контур дома и переместить в нее барбекю. Так появилась еще одна гостиная — каминная. Роль стен здесь играют огромные стеклянные слайд-системы, визуально объединяющие это пространство с окружающей природой.
Общий вид дома на участке. Проектирование, строительство, компания «Архивуд». Общий вид дома на участке. Проектирование, строительство, компания «Архивуд».
Слева крытая терраса с каминной зоной. Камин от компании «Центр Саун и Каминов» оформлен мрамором и деревянными рейками, а дрова играют роль одного из декоративных акцентов, на контрасте подчеркивая утонченность общего художественного решения. Справа зона отдыха при бассейне, она организована в уютной нише. Здесь уже использована отделка деревом, подчеркивающая связь пространства с природой. Диванная группа, Ethimo (Этимо). Ковер, Decaro (Декаро). Слева крытая терраса с каминной зоной. Камин от компании «Центр Саун и Каминов» оформлен мрамором и деревянными рейками, а дрова играют роль одного из декоративных акцентов, на контрасте подчеркивая утонченность общего художественного решения. Справа зона отдыха при бассейне, она организована в уютной нише. Здесь уже использована отделка деревом, подчеркивающая связь пространства с природой. Диванная группа, Ethimo (Этимо). Ковер, Decaro (Декаро).
«Хозяйка много времени уделяет дому, — говорит автор проекта интерьера Елена Лукинская, — его декорированию, кулинарии и сервировке, поэтому с особым вниманием нами была проработана кухня, в частности предусмотрена специальная «гардеробная» для посуды, в которой хранятся сервизы, скатерти, столовые приборы. Заказчица принимала активное участие в подборе всех элементов мебели и декора, а в день сьемки активно помогала декорировать интерьер. Для нее важно, чтобы каждый арт-объект имел глубокий смысл, а не просто был хорош визуально». Вот и ответ на вопрос, почему этот дом так тонко сочетает элегантность с домашним теплом и уютом.
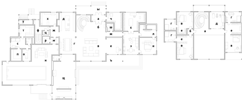
Планировка. Планировка.
Вид из гостиной на кабинет. В планировке парадных помещений первого этажа элементы анфилады переосмыслены в актуальном сегодня ключе, и это придает пространству особый шик современной загородной резиденции. Библиотека выполнена на заказ компанией «Гарант 100».