Красота тишины: интерьер, который дышит
Проект дизайнера Нины Коваленко — воплощение осознанного гедонизма, где софт-минимализм создает безупречный фон для того, чтобы «жить как хочется»: в светлых тонах, с лучшими вещами и продуманным личным пространством.
25 фото
Площадь: 160 кв. м
Этот интерьер стал диалогом между безупречным вкусом заказчицы и величественным панорамным видом на Финский залив. В его основе лежат уверенные, легкие решения, свободные от необходимости что-либо доказывать с помощью предметов интерьера. Хорошая насмотренность и глубокое понимание образа жизни семьи, а также повседневных задач домашнего персонала легли в основу планировочного решения. Негласным девизом проекта стала красота тишины, воплощенная в единой концепции современного дизайна, где стиль и эргономика строились на комфортном образе жизни с сохранением эстетики минимализма.
Автор
проекта дизайнер Нина Коваленко, студия дизайна THE NEW STORY.
«Заказчица — прекрасная, умная женщина предприниматель и руководитель, мать двоих детей. Среди ключевых пожеланий заказчицы было максимально раскрыть потрясающий вид на залив, создать отдельную приватную зону с кабинетом и личными комнатами, а также тщательно продумать функциональные потоки для детей и персонала», — рассказывает автор проекта, дизайнер Нина Коваленко.
Гостиная. Цветовая палитра строится на серо-бежевых тонах, создающих нейтральный фон, на фоне которых особенно выразительно смотрятся современные предметы мебели. Диваны, Boca Room. Черный кофейный столик, dizainazona. Ковер, kover.ru. Гипсовые панели, Aratta. Стены окрашены краской Flugger и Avium, салон Pittera. Инженерная доска, Finex. Гостиная. Цветовая палитра строится на серо-бежевых тонах, создающих нейтральный фон, на фоне которых особенно выразительно смотрятся современные предметы мебели. Диваны, Boca Room. Черный кофейный столик, dizainazona. Ковер, kover.ru. Гипсовые панели, Aratta. Стены окрашены краской Flugger и Avium, салон Pittera. Инженерная доска, Finex.
Эффектная кухня с использованием переливающегося шпона Koto выполнена по индивидуальному заказу студией мебели Cube. Кухня оснащена большой вместительной системой хранения с выдвижными механизмами. Обеденный стол, «ТОК». Кожаные стулья, Arlet. Крупноформатный керамогранит, Zodiac. Подвесной светильник над столом, Центрсвет. Вазы, Guax. Эффектная кухня с использованием переливающегося шпона Koto выполнена по индивидуальному заказу студией мебели Cube. Кухня оснащена большой вместительной системой хранения с выдвижными механизмами. Обеденный стол, «ТОК». Кожаные стулья, Arlet. Крупноформатный керамогранит, Zodiac. Подвесной светильник над столом, Центрсвет. Вазы, Guax.
В квартире была выделена мастер-зона, которая включает не просто спальню с санузлом и гардеробной, а целое крыло из шести помещений с личным кабинетом. Кухня-гостиная с потрясающим видом выполнена в ненавязчивом, но до мелочей продуманном дизайне, служащим идеальным фоном для жизни. Особое внимание заслуживает кофейная зона: тонкие линии вентиляционных решеток из натурального дерева, редкий шпон, складные фасады, скрывающие зону для приготовления горячих напитков и легкого завтрака, хранение посуды на удобном уровне и максимально оснащенная выдвижными механизмами кухня, которая невероятно красиво переливается на закате.
Вид из кухни-столовой на остекленную лоджию. Обеденный стол, «ТОК». Кожаные стулья, Arlet. Подвесной светильник над столом, Центрсвет. Вазы, Guax. Вид из кухни-столовой на остекленную лоджию. Обеденный стол, «ТОК». Кожаные стулья, Arlet. Подвесной светильник над столом, Центрсвет. Вазы, Guax.
Лоджия.
Столик Miniforms на лоджии цвета морской воды стал связующим звеном между
водным пейзажем за окном и интерьером. Кресло, Garda Décor. Шторы,
индивидуальный пошив. Лоджия.
Столик Miniforms на лоджии цвета морской воды стал связующим звеном между
водным пейзажем за окном и интерьером. Кресло, Garda Décor. Шторы,
индивидуальный пошив.
В прихожей расположен большой шкаф с индивидуально разработанной системой хранения для обуви, выполненный студией мебели Cube. Тепло и акцент вносит стена глубокого терракотового оттенка. Большое зеркало в пол, Glassico. Пуф, Laboratory Dome. В прихожей расположен большой шкаф с индивидуально разработанной системой хранения для обуви, выполненный студией мебели Cube. Тепло и акцент вносит стена глубокого терракотового оттенка. Большое зеркало в пол, Glassico. Пуф, Laboratory Dome.
«Спокойное утро начинается с чистых линий гостиной, с прикосновений к натуральному дереву на функциональной кухне, где нет визуального шума и где дышится легко. С чашки любимого напитка с видом на залив, — добавляет Нина. — А вечером здесь можно уединиться в уютном кресле у барной зоны, наблюдая, как закатное солнце уходит за горизонт».
Спальня с чистыми линиями, большим зеркалом, не загроможденная мебелью, с ультрасовременными аксессуарами выглядит подчеркнуто лаконично и стильно. Кровать, Boca Room. Подвесной светильник, Laboratory Dome. Покрывало, Mon6. Прикроватные тумбы, Cube. Спальня с чистыми линиями, большим зеркалом, не загроможденная мебелью, с ультрасовременными аксессуарами выглядит подчеркнуто лаконично и стильно. Кровать, Boca Room. Подвесной светильник, Laboratory Dome. Покрывало, Mon6. Прикроватные тумбы, Cube. 
Просторная ванная комната вмещает множество мест для хранения и пространство для ухода за собой. Подвесная тумба и вся встроенная мебель выполнена мебельной студией Cube. Матовая ванна из камня, Kupala. Сантехника, Remer. Раковина изготовлена на заказ. Просторная ванная комната вмещает множество мест для хранения и пространство для ухода за собой. Подвесная тумба и вся встроенная мебель выполнена мебельной студией Cube. Матовая ванна из камня, Kupala. Сантехника, Remer. Раковина изготовлена на заказ.
Кабинет с ТВ-зоной. В комнате предусмотрены скрытые шкафы. Диван, Kare. Кофейный столик, MiniForm. Ковер, kover.ru. Теневые рейки и карнизы, «Теневой» и Laconistic. Трековые светильники, Ledmonster. Декоративные подушки, Predmety. Кабинет с ТВ-зоной. В комнате предусмотрены скрытые шкафы. Диван, Kare. Кофейный столик, MiniForm. Ковер, kover.ru. Теневые рейки и карнизы, «Теневой» и Laconistic. Трековые светильники, Ledmonster. Декоративные подушки, Predmety. 
Фрагмент кабинета. У окна обустроена рабочая зона. Письменный стол, Gatura. Стул, Anni Haus. Настольная лампа, Oluce. Фрагмент кабинета. У окна обустроена рабочая зона. Письменный стол, Gatura. Стул, Anni Haus. Настольная лампа, Oluce.
У каждого ребенка есть своя отдельная комната, оборудованная по возрасту и вкусу юного владельца, с отдельным санузлом и дополнительными помещениями — утепленными лоджиями, отведенными под хобби. Под хозяйственные нужды выделено отдельное помещение с кладовой, постирочной, сушильной и гладильной системами. Лаконичная входная зона, соединяющая два крыла квартиры, оформлена в строгом стиле и кажется безграничной благодаря большим зеркалам в пол. Принципиальным был выбор качественных натуральным материалов: инженерная доска Finex для пола, сдержанный минималистичный декор отделки и керамогранита. Более яркие элементы использованы лишь в небольших акцентах. А на стенах — качественная краска Flugger и Avium.
Спальня старшего ребенка. Все шкафы, стеллажи, тумбы, а также письменный стол изготовлены мебельной студией Cube. Стул, Anni Haus. Ковер, Gallery 46. Настольная лампа, Oluce. Спальня старшего ребенка. Все шкафы, стеллажи, тумбы, а также письменный стол изготовлены мебельной студией Cube. Стул, Anni Haus. Ковер, Gallery 46. Настольная лампа, Oluce.
Спальня младшего ребенка. Шкафы, подвесная тумба, стеллажи для книг, письменный стол, индивидуальное исполнение мебельной студией Cube. Кровать, мебельная фабрика «Спи Красиво». Кресло, Puffi. Пуф, Wigiwama. Ковер, Predmety. Кофейный столик (рядом с креслом), &Tradition. Спальня младшего ребенка. Шкафы, подвесная тумба, стеллажи для книг, письменный стол, индивидуальное исполнение мебельной студией Cube. Кровать, мебельная фабрика «Спи Красиво». Кресло, Puffi. Пуф, Wigiwama. Ковер, Predmety. Кофейный столик (рядом с креслом), &Tradition. 
Детский санузел. Подвесная тумба, Cube. Зеркало, Glassico. Керамогранит, Atlas Concordе. Детский санузел. Подвесная тумба, Cube. Зеркало, Glassico. Керамогранит, Atlas Concordе.
«Создание красивого минимализма — это тонкая работа. В каждую линию мы вложили частичку своего сердца, каждый сантиметр был проработан с заботой и любовью к нашим замечательным клиентам, таким как Виктория. Я бесконечно признательна ей за доверие и предоставленную возможность», — завершает рассказ автор проекта.
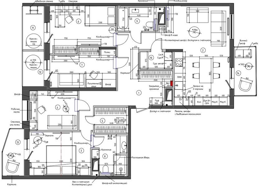
Планировка. Планировка.
Автор проекта дизайнер Нина Коваленко, студия дизайна THE NEW STORY.