Квартира как загородный дом: современный интерьер для семьи
Команда архитектурного бюро «ЛВА-Интерьер» создала пластичное и функциональное пространство семейной квартиры, наполнив его узнаваемыми авторскими решениями.
48 фото
Площадь: 460 кв. м
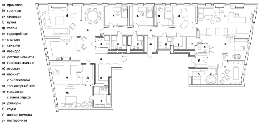
Эту видовую квартиру в элитном столичном ЖК на юго-западе Москвы можно назвать примером смелой пространственной трансформации. Интерьер создавался в несколько этапов. За время проектирования молодая семья заказчиков заметно выросла, и к началу строительных работ стало очевидно: первоначальная площадь уже не отвечает всем потребностям, и нужно расширяться, дополняя новыми детскими и игровыми зонами. Свои коррективы внесла и пандемия: к списку приоритетов добавились рабочие места для родителей, а также персональные спортивная и спа-зоны. «Пространство фактически сложилось из нескольких объединенных лотов, занимающих половину этажа. В результате возникла редкая для многоквартирного дома ситуация: схема функционального зонирования квартиры сопоставима с планировочной структурой одноэтажного индивидуального дома», — рассказывает руководитель бюро архитектор Анна Карпова.
Вид на единое пространство столовой и гостиной. «Этот интерьер насыщен современной живописью и арт-объектами. К счастью, заказчики располагают обширной коллекцией — и одна из наших ключевых задач заключалась в том, чтобы грамотно разместить ее: обеспечить удачный обзор и продуманное освещение каждого экспоната», — рассказывает Анна Карпова. Одна из таких живописных работ (автор Дмитрий Шорин) украшает зону столовой. Обеденный стол и стулья, Baxter (Бакстер). Люстра, Paolo Castelli (Паоло Кастелли). Вид на единое пространство столовой и гостиной. «Этот интерьер насыщен современной живописью и арт-объектами. К счастью, заказчики располагают обширной коллекцией — и одна из наших ключевых задач заключалась в том, чтобы грамотно разместить ее: обеспечить удачный обзор и продуманное освещение каждого экспоната», — рассказывает Анна Карпова. Одна из таких живописных работ (автор Дмитрий Шорин) украшает зону столовой. Обеденный стол и стулья, Baxter (Бакстер). Люстра, Paolo Castelli (Паоло Кастелли).
Вид из гостиной на столовую и кухню. Фактурность пространству придают медные панели De Castelli (Де Кастелли). Их глубокий теплый оттенок перекликается с обивкой дивана от Minotti (Минотти). Стеллаж, Ceccotti Collezioni (Чекотти Коллецьони). Журнальный стол, кресло, Minotti (Минотти). Люстра, Italamp (Италамп). Ваза — из личной коллекции хозяев. Вид из гостиной на столовую и кухню. Фактурность пространству придают медные панели De Castelli (Де Кастелли). Их глубокий теплый оттенок перекликается с обивкой дивана от Minotti (Минотти). Стеллаж, Ceccotti Collezioni (Чекотти Коллецьони). Журнальный стол, кресло, Minotti (Минотти). Люстра, Italamp (Италамп). Ваза — из личной коллекции хозяев.
Для гостиной была спроектирована индивидуальная стойка для домашнего кинотеатра, исполненная российскими краснодеревщиками из дуба с панелями-вставками из черной буйволиной кожи. Для гостиной была спроектирована индивидуальная стойка для домашнего кинотеатра, исполненная российскими краснодеревщиками из дуба с панелями-вставками из черной буйволиной кожи.
Усложняло решение планировочной задачи односторонняя ориентация фронта окон, а также расположение «мокрых» зон и, как следствие, риск образования протяженных коридоров, типичных для подобных планировок. В итоге архитекторам удалось логично разделить жилое пространство на четыре функциональных блока, каждый со своей четкой ролью. Композиционным центром квартиры стала общая парадная зона: пространства гостиной, столовой и кухни органично перетекают друг в друга, образуя связную планировочную структуру.
Зона кухни. Кухня, Tabula Cucine (Табула Кучине). Барные стулья, Baxter (Бакстер). Зона кухни. Кухня, Tabula Cucine (Табула Кучине). Барные стулья, Baxter (Бакстер).
Слева зона кухни. Справа столовая. Художественный акцент столовой — барельеф «Альпинисты» работы известного современного скульптора Григория Эмви (Масленникова), созданный специально для этого проекта. Обеденный стол, Baxter (Бакстер). Слева зона кухни. Справа столовая. Художественный акцент столовой — барельеф «Альпинисты» работы известного современного скульптора Григория Эмви (Масленникова), созданный специально для этого проекта. Обеденный стол, Baxter (Бакстер).

Для облицовки стен, обращенных в столовую и гостиную, авторы проекта спроектировали асимметричные медные панели разного оттенка, которые специально для этого проекта были выполнены на производстве в Италии. «Мы много используем авторских столярных изделий, декоративных панелей и предметов мебели, решающих комплексно задачу организации уникального пространства», — отмечает Анна Карпова. Кресла, столик, Paolo Castelli (Паоло Кастелли). Для облицовки стен, обращенных в столовую и гостиную, авторы проекта спроектировали асимметричные медные панели разного оттенка, которые специально для этого проекта были выполнены на производстве в Италии. «Мы много используем авторских столярных изделий, декоративных панелей и предметов мебели, решающих комплексно задачу организации уникального пространства», — отмечает Анна Карпова. Кресла, столик, Paolo Castelli (Паоло Кастелли).
Витражное остекление не только наполняет ее солнечным светом, таким ценным для средней полосы, но и раскрывает панорамные виды на Москву, превращая городской ландшафт в динамичный элемент интерьера. Кухонную зону отделяет от холла сдвижная перегородка, которая усиливает функциональную гибкость пространства. В левом крыле квартиры находится приватный хозяйский блок, состоящий из спальни, ванной комнаты и гардеробной — это фактически автономная квартира в общем объеме. «Таким образом планировка реализует принцип «разделения без изоляции»: четкое зонирование сочетается с визуальными и пространственными связями между функциональными частями», — отмечает Анна.
Фрагмент интерьера библиотеки. Журнальный стол, Arketipo (Аркетипо). Диван, Morbidone (Морбидонэ). Люстра, Contardi (Контарди). Фрагмент интерьера библиотеки. Журнальный стол, Arketipo (Аркетипо). Диван, Morbidone (Морбидонэ). Люстра, Contardi (Контарди).
Для кабинета с библиотекой архитекторы специально разработали сложную систему с двусторонними стеллажами для книг, часть из которых отделяет рабочее пространство, и зону отдыха от спортивного зала и спа. В кабинете по индивидуальному проекту создан трансформирующийся стеллаж и стена для документов за рабочим столом. Письменный стол и рабочее кресло, Poltrona Frau (Полтрона Фрау). Светильник, Contardi (Контарди). Для кабинета с библиотекой архитекторы специально разработали сложную систему с двусторонними стеллажами для книг, часть из которых отделяет рабочее пространство, и зону отдыха от спортивного зала и спа. В кабинете по индивидуальному проекту создан трансформирующийся стеллаж и стена для документов за рабочим столом. Письменный стол и рабочее кресло, Poltrona Frau (Полтрона Фрау). Светильник, Contardi (Контарди).

К общему пространству гостиной примыкает коридор, выполняющий функцию коммуникационного центра. Он связывает группу детских помещений (спальни с ванными комнатами и игровую), обеспечивая логичную организацию приватной зоны для младшего поколения. Далее коридор ведет в многофункциональный объем, где сгруппированы помещения рекреационно-оздоровительного и рабочего назначения — зона спа (спортзал, бьюти-комната, сауна), домашний офис и библиотека. «Архитектурно планировочное решение этого блока демонстрирует принцип модульной организации, где каждое помещение сохраняет автономность, но при этом интегрировано в общую систему через единую ось коммуникации. Такое построение минимизирует пересечения функциональных потоков и создает условия для вариативного использования пространства», — поясняет Анна.
Стена за изголовьем кровати оформлена индивидуальными шпонированными панелями из палисандра. Шпон искусно разложили рисунком «шеврон» и дополнили вертикальными вставками из латуни. Кроват, прикроватная тумба , люстра, подвесные светильники — всё Paolo Castelli (Паоло Кастелли). Стена за изголовьем кровати оформлена индивидуальными шпонированными панелями из палисандра. Шпон искусно разложили рисунком «шеврон» и дополнили вертикальными вставками из латуни. Кроват, прикроватная тумба , люстра, подвесные светильники — всё Paolo Castelli (Паоло Кастелли).
Фрагмент спальни хозяев. Журнальный столик, Minotti (Минотти).
Стилистической основой интерьера стало направление timeless contemporary (контемпорари вне времени) с фрагментарной интеграцией этнических мотивов и арта. «Мы не гонимся за строгим соблюдением приемов какого-то определенного стиля. Более важным для нас является уместность примененных решений, актуальных долгое время, и создание положительного эмоционального заряда. Сейчас такие интерьеры принято характеризовать как дофаминовые. А еще интерьер должен выдерживать долгий взгляд, то есть его интересно рассматривать в деталях. Принципиальна умная пластичность: когда пространство, подобно живому организму, растет вместе с теми, кто в нем живет, сохраняя при этом свою сущность и характер. Заказчики хорошо знали наш подход по предыдущим совместным проектам. Благодаря сложившемуся доверию работа шла легко — когда архитектор и клиент разделяют общие ценности, путь к результату приносит радость от процесса», — заключает Анна Карпова.
Мебель в детских комнатах создана по индивидуальным эскизам проектной группы «ЛВА-Интерьер» и изготовлена на отечественном производстве. Рабочее кресло, Moll (Моль). Мебель в детских комнатах создана по индивидуальным эскизам проектной группы «ЛВА-Интерьер» и изготовлена на отечественном производстве. Рабочее кресло, Moll (Моль).
Ванные комнаты приватного блока. «В наших интерьерах много природных материалов, и камень один из них. Мы ценим его за многообразие оттенков и текстур, а также за прекрасные эксплуатационные характеристики. Предпочтение отдаем большеформатной слэбной укладке, которая позволяет работать как с большими пространствами, так и с маленькими помещениями. Это своего рода визитная карточка нашего бюро», — объясняет Анна Карпова. Ванные комнаты приватного блока. «В наших интерьерах много природных материалов, и камень один из них. Мы ценим его за многообразие оттенков и текстур, а также за прекрасные эксплуатационные характеристики. Предпочтение отдаем большеформатной слэбной укладке, которая позволяет работать как с большими пространствами, так и с маленькими помещениями. Это своего рода визитная карточка нашего бюро», — объясняет Анна Карпова.

Планировка. Планировка.
Фрагмент спальни хозяев. Журнальный столик, Minotti (Минотти).