Необычная и элегантная квартира в Тюмени
Дизайнер Анна Наумова создала уникальное пространство, вдохновленное закатным светом и временами великих кутюрье Парижа.
17 фото
Площадь: 105 кв. м
Тюмень — город особенный. В нем исключительным образом переплетаются памятники сибирского зодчества и современная архитектура, чьи стеклянные фасады отражают историческое наследие. Именно слияние истории и облика города напрямую повлияло на концепцию интерьера.
Гостиная. Журнальный стол Bilbao, Mogg. Столики Otus Square и Otus Round, Eichholtz. Кресла, столярная мастерская «Афина» в текстиле Tiger Mountain от Dedar. Картина, Саша Савина. Арт-принты, работы Светланы Воронченко. Акцентная подсветка — светильники Lyb, Aromas del Campo. Гостиная. Журнальный стол Bilbao, Mogg. Столики Otus Square и Otus Round, Eichholtz. Кресла, столярная мастерская «Афина» в текстиле Tiger Mountain от Dedar. Картина, Саша Савина. Арт-принты, работы Светланы Воронченко. Акцентная подсветка — светильники Lyb, Aromas del Campo.
Вид на гостиную. «Особое внимание уделено напольным покрытиям. Сознательно отказавшись от традиционного паркета, я выбрала атмосферный кварцвинил Vinilam в оттенках «Белый бетон» и «Сланцевый черный». Это решение позволило достичь желанной аскетичной эстетики, имитирующей благородную фактуру натурального камня», — заканчивает рассказ Анна Наумова. Вид на гостиную. «Особое внимание уделено напольным покрытиям. Сознательно отказавшись от традиционного паркета, я выбрала атмосферный кварцвинил Vinilam в оттенках «Белый бетон» и «Сланцевый черный». Это решение позволило достичь желанной аскетичной эстетики, имитирующей благородную фактуру натурального камня», — заканчивает рассказ Анна Наумова.
«Тюмень обладает особенным светом, благодаря которому город может похвастаться незабываемыми закатами и уникальными оттенками, — рассказывает автор проекта Анна Наумова. — Дом, в котором находится квартира, просто пронизан светом. Поэтому интерьер потребовал тщательного подбора цветовой гаммы, в которой игра света и тени, проникающих сквозь жалюзи, стала неотъемлемой частью замысла. Значительным источником вдохновения послужила квартира Ива Сен-Лорана на Rue de Babylone в Париже, известная своей виртуозной работой со светом».
Общий вид гостиной. «Изначально пространство было свободным. Архитектурный ритм задавала лишь пара несущих колонн. Эту особенность я превратила в преимущество: часть колонн органично вписалась в стены, а центральная стала эффектным акцентом. Ее я одела в зеркала и дополнила изысканной работой Светланы Воронченко «Аполлон», — дополняет Анна. Диван, мастерская «Афина». Журнальный стол, Mogg. Обеденный стол Cop, стулья My Way, Bonaldo. Торшеры, Vibia. Подвесной светильник над обеденным столом, Audo Copenhagen. Общий вид гостиной. «Изначально пространство было свободным. Архитектурный ритм задавала лишь пара несущих колонн. Эту особенность я превратила в преимущество: часть колонн органично вписалась в стены, а центральная стала эффектным акцентом. Ее я одела в зеркала и дополнила изысканной работой Светланы Воронченко «Аполлон», — дополняет Анна. Диван, мастерская «Афина». Журнальный стол, Mogg. Обеденный стол Cop, стулья My Way, Bonaldo. Торшеры, Vibia. Подвесной светильник над обеденным столом, Audo Copenhagen.
Столовая. Над обеденной группой парит подвесной светильник Hashira Pendant Cluster Large Raw от Audo Copenhagen. Его уменьшенная версия и настольная лампа украшают гостевой санузел. Обеденный стол Cop, стулья My Way — Bonaldo. На столе — винтажные вазы, Galerie 46. Столовая. Над обеденной группой парит подвесной светильник Hashira Pendant Cluster Large Raw от Audo Copenhagen. Его уменьшенная версия и настольная лампа украшают гостевой санузел. Обеденный стол Cop, стулья My Way — Bonaldo. На столе — винтажные вазы, Galerie 46.
«Анна, мы вам доверяем!» — этой лаконичной фразой заказчики обозначили вектор проекта: создание не просто интерьера, а пространства, наполненного истинным вдохновением и честными эмоциями. «Я не приверженец единой стилистики. Моя философия — в синтезе истории, идей и источников вдохновения. Именно этот синтез рождает уникальный стиль, который затем развивается в целостную концепцию. Данный проект — оммаж квартире Сен-Лорана. Меня покорили деревянные панели и дух той эпохи, навевающий образы творческих вечеров, лакированных поверхностей и предметов искусства», — дополняет Анна.
Фрагмент кухни. Лаконизм и стиль в дверных решениях воплотила модель Next от Respect Home. Их стекло, обладающее уникальной непрозрачностью, создает в интерьере изысканную игру света, напоминающую дымчатую вуаль. Кухня — вдохновение из фильма Nocturnal Animals Тома Форда, изготовлена столярной мастерской «Афина» по эскизам автора проекта. Полубарные стулья Kage, Meridiani. Винтажная ваза, Galerie 46. Фрагмент кухни. Лаконизм и стиль в дверных решениях воплотила модель Next от Respect Home. Их стекло, обладающее уникальной непрозрачностью, создает в интерьере изысканную игру света, напоминающую дымчатую вуаль. Кухня — вдохновение из фильма Nocturnal Animals Тома Форда, изготовлена столярной мастерской «Афина» по эскизам автора проекта. Полубарные стулья Kage, Meridiani. Винтажная ваза, Galerie 46.
Цветовая гамма — приглушенная, камерная и обволакивающая: оттенки оливковой косточки, выгоревшей розы, цвет песка, глубокой зелени и свежей мяты. Цвет бордо, имитирующий мокрую глину, использован для расстановки акцентов.
Сердцем квартиры стала просторная спальня с роскошной ванной комнатой. На прикроватных тумбах — настольные лампы Vibia (модель Dama), а потолок венчают модели Duo 4876 и Duo 4878, создавая завершенную и уютную картину. Кровать, «Афина». Картины, Евгения Киселева и Анна Милентьева. Сердцем квартиры стала просторная спальня с роскошной ванной комнатой. На прикроватных тумбах — настольные лампы Vibia (модель Dama), а потолок венчают модели Duo 4876 и Duo 4878, создавая завершенную и уютную картину. Кровать, «Афина». Картины, Евгения Киселева и Анна Милентьева.
В ванной были установлены эстетически утонченные сантехнические приборы от компании Aqua Marine и безупречные по качеству смесители Kludi. Особого внимания заслуживает уникальный «ковер» из керамогранита от Galladecor, спроектированный и собранный индивидуально. Ванна, Belbagno. Картина, Екатерина Наумова. В ванной были установлены эстетически утонченные сантехнические приборы от компании Aqua Marine и безупречные по качеству смесители Kludi. Особого внимания заслуживает уникальный «ковер» из керамогранита от Galladecor, спроектированный и собранный индивидуально. Ванна, Belbagno. Картина, Екатерина Наумова.
«Эволюция моего подхода в создании интерьеров проявляется в использовании только натуральных материалов, таких как мрамор, травертин, натуральные шпоны, качественный текстиль. Работая в эклектике, я сознательно избегаю сиюминутных трендов. Мой дизайн сугубо авторский, основанный на опыте и знании. Современная эволюция дизайна для меня — это экологичность, вневременная красота и свобода от трендов. Поэтому в выборе материалов и партнеров я всегда придерживаюсь стабильности и качества. Так, компания Artonyx изготовила для этого проекта раковины и столешницы из редкого мрамора, что придало пространству не только стиль, но и визуальную глубину», — отмечает дизайнер. В качестве отделки была выбрана декоративная штукатурка от компании New Home, покрывающая тотально все стены и потолки текстурой замши, тактильно очень натуральной и изысканной.
Кабинет. «Философия этого интерьера — бескомпромиссное качество. Каждый предмет мебели, отделки и искусства был тщательно отобран из числа лучших мировых образцов. Я опиралась на многолетнее доверительное сотрудничество с проверенными партнерами», — говорит Анна.
«Гостиная представляет собой ансамбль выдающихся предметов мебели, заказанных в компании Allegro Home, с которой мы комплектуем лучшие интерьеры уже многие годы, — замечает Анна Наумова. — Также большую роль играет свет. Благодаря компании Svetlove нам удалось найти редкий потолочный светильник-вентилятор от Faro и наполнить пространство эксклюзивным светом, а осветительные приборы, подобранные совместно с Small Table Lamp, создают атмосферу винтажной изысканности в столовой».
Фрагмент спальни. На стене — латунные лампы для чтения Ycro от Aromas del Campo. Столешницы консоли выполнены из натурального мрамора от Artonyx. Картина, Екатерина Наумова. Фрагмент спальни. На стене — латунные лампы для чтения Ycro от Aromas del Campo. Столешницы консоли выполнены из натурального мрамора от Artonyx. Картина, Екатерина Наумова.
«Свет — важнейший соавтор этого проекта. Любимая гостевая комната обрела глубину благодаря торшеру Geen-A MA Brick Red от Kartell», — рассказывает Анна. Кровать, консоль выполнены по эскизам Анны Наумовой в столярной мастерской «Афина». Ковер, Allegro Home. Потолочный светильник в виде вентилятора, Faro. Поставка светильников, компания Svetlove. «Свет — важнейший соавтор этого проекта. Любимая гостевая комната обрела глубину благодаря торшеру Geen-A MA Brick Red от Kartell», — рассказывает Анна. Кровать, консоль выполнены по эскизам Анны Наумовой в столярной мастерской «Афина». Ковер, Allegro Home. Потолочный светильник в виде вентилятора, Faro. Поставка светильников, компания Svetlove.
Даже в компактной гостевой комнате был достигнут баланс между натуральным травертином и качественным керамогранитом, подобранным компанией Galladecor. В частности, были использованы материалы исключительной красоты: Travertino Santa Cate, Corten A, R61ME. BE Meteora Beige, а также керамогранит фабрики Rex — Bijoux Ombre и Calacatto Altissimo. Даже в компактной гостевой комнате был достигнут баланс между натуральным травертином и качественным керамогранитом, подобранным компанией Galladecor. В частности, были использованы материалы исключительной красоты: Travertino Santa Cate, Corten A, R61ME. BE Meteora Beige, а также керамогранит фабрики Rex — Bijoux Ombre и Calacatto Altissimo.
Искусство — неотъемлемая составляющая проекта. «Я не могу пройти мимо работ Саши Савиной, которые мы расположили в зоне гостиной, и арт-принтов Светланы Воронченко. Ее работа «Тео» украшает коридор у гостевой комнаты, а «Май» стены гостиной». Ключевые крупноформатные полотна были созданы специально для проекта талантливыми художниками Екатериной Наумовой, Евгенией Киселевой и Анной Милентьевой. Завершающим штрихом, подчеркивающим уникальность интерьера, стали предметы, найденные в Galerie 46. Винтажные вазы, а также книги и чаши для свечей, стилистически перекликающиеся с бокалами для бордо, добавили пространству ощущение утонченной истории и камерного уюта, воплотив авторский замысел в мельчайших деталях.
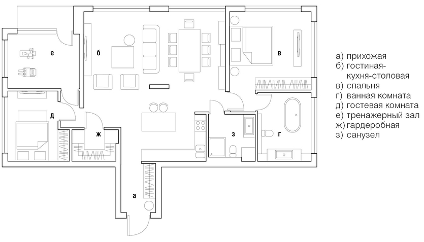
Планировка квартиры. Планировка квартиры.
Кабинет. «Философия этого интерьера — бескомпромиссное качество. Каждый предмет мебели, отделки и искусства был тщательно отобран из числа лучших мировых образцов. Я опиралась на многолетнее доверительное сотрудничество с проверенными партнерами», — говорит Анна.