Панорамная квартира со спа-зоной и видом на Обь
Эту квартиру в 25-этаже в новосибирской высотке с потрясающим видом на окрестности дизайнер Елена Булович оформила для молодой семьи.
29 фото
Площадь: 160 кв.м
Квартира находится в Новосибирске, на левом берегу реки с панорамным видом на город, могущественную Обь и новый стадион «Сибирь-Арена». Заказчики — молодая пара — обратились к Елене Булович с запросом на теплый, уютный, эмоциональный интерьер, наполненный природными акцентами, но сразу обозначили главную проблему — непростые исходные параметры пространства: вытянутая форма, окна по одному фронту и с двух торцевых сторон, а еще объект сложился в результате объединения двух квартир, что также накладывало свои нюансы.
Автор проекта дизайнер Елена Булович, основатель студии BULOVICH STUDIO.
«Для нас подобные вызовы — не первый опыт, студия уже работала над объединением квартир и примерно понимала, с чем придется столкнуться. В свою очередь, всю юридическую рутину данного вопроса заказчик взял на себя — это непростая и муторная процедура, но осуществимая. В итоге объединения двух квартир у нас получились 160 кв. м», — отмечает автор проекта.
Заказчики любят отдыхать на диване, поэтому длина оттоманки, как и место, были заранее определены. Расположить диван в небольших габаритах гостиной было непросто. Дизайнеры выкраивали буквально миллиметры, для чего даже пришлось сместить гостевой санузел на 10-15 см. Кофейный стол, Natuzzi. Ковер, kover.ru. Ваза «Анемона», художница-керамистка Виктория Гончар. Ваза, EDG Enzo De Gasperi. Заказчики любят отдыхать на диване, поэтому длина оттоманки, как и место, были заранее определены. Расположить диван в небольших габаритах гостиной было непросто. Дизайнеры выкраивали буквально миллиметры, для чего даже пришлось сместить гостевой санузел на 10-15 см. Кофейный стол, Natuzzi. Ковер, kover.ru. Ваза «Анемона», художница-керамистка Виктория Гончар. Ваза, EDG Enzo De Gasperi.
После объединения двух квартир встал вопрос, где расположить гостиную-кухню. Как замечает дизайнер, долго выбирать не пришлось. Дневную зону расположили в самой видовой части пространства, откуда открываются эффектные виды на город и на реку. После объединения двух квартир встал вопрос, где расположить гостиную-кухню. Как замечает дизайнер, долго выбирать не пришлось. Дневную зону расположили в самой видовой части пространства, откуда открываются эффектные виды на город и на реку.
Телевизионную зону оформили шпоном американского ореха. Торец кухни и шкафов в коридоре задекорировали тем же материалом, чтобы проход между кухней и гостиной стал органичной частью композиции. Телевизионную зону оформили шпоном американского ореха. Торец кухни и шкафов в коридоре задекорировали тем же материалом, чтобы проход между кухней и гостиной стал органичной частью композиции.
Команда во главе с Еленой Булович безупречно справилась с поставленной задачей, создав комфортное, многофункциональное пространство с просторной гостиной, двумя кабинетами, совмещенными с гардеробными, и роскошной спа-зоной с массажной комнатой. Ее жемчужиной стала отдельно стоящая ванна у окна в спальне хозяев, откуда открывается великолепная панорама города с высоты птичьего полета.
Вид из гостиной на зону столовой. Обеденные кресла, Cattelan Italia. Подвесные светильники, Bonaldo. Вид из гостиной на зону столовой. Обеденные кресла, Cattelan Italia. Подвесные светильники, Bonaldo.
Зона кухни максимально функциональна и скрывается за условным поворотом, в небольшой нише, по принципу «кухня с нами, но без нас», а столовая группа в открытом пространстве отделена от нее островной стойкой. Кухня, Valdesign Cucine, поставка салон Alf Italia Home. Полубарные стулья, подвесные светильники, Bonaldo. Обеденные кресла, Cattelan Italia. Вазы, Adriani&Rossi. Графин, Andrea Fontebasso. Декоративный шар, мастерская Terrakot. Зона кухни максимально функциональна и скрывается за условным поворотом, в небольшой нише, по принципу «кухня с нами, но без нас», а столовая группа в открытом пространстве отделена от нее островной стойкой. Кухня, Valdesign Cucine, поставка салон Alf Italia Home. Полубарные стулья, подвесные светильники, Bonaldo. Обеденные кресла, Cattelan Italia. Вазы, Adriani&Rossi. Графин, Andrea Fontebasso. Декоративный шар, мастерская Terrakot.
Рабочая поверхность на кухне организована в том числе и вдоль панорамного остекления. Как признается дизайнер, они не побоялись перекрыть окно столешницей с мойкой, ведь мыть посуду, любуясь видом — отдельное удовольствие. Рабочая поверхность на кухне организована в том числе и вдоль панорамного остекления. Как признается дизайнер, они не побоялись перекрыть окно столешницей с мойкой, ведь мыть посуду, любуясь видом — отдельное удовольствие.
В стремлении совместить безупречное удобство с высоким дизайном в квартире установили современные технологии, поддерживающие качество жизни на должном уровне («умный дом», систему вентиляции и увлажнения с минимальными опусками потолка), а также эффектные элементы оформления — скрытые двери под потолок и большеформатный керамический декор (1500х3000 мм). Помимо сложнейшего монтажа подъем в башню на 25 этаж потребовал привлечения альпинистов. Эти крайне затратные и трудоёмкие работы оправдали себя на сто процентов — элегантные полотна дверей сливаются со стенами, а бесшовные плоскости керамогранита создают впечатление монолита.
Спальня хозяев. Кровать, Ditre Italia. Прикроватная тумба, Pianca. Светильники-подвесы над тумбами Ledmonster. Ковер, kover.ru. Подвесные светильники около ванны, Foscarini. Спальня хозяев. Кровать, Ditre Italia. Прикроватная тумба, Pianca. Светильники-подвесы над тумбами Ledmonster. Ковер, kover.ru. Подвесные светильники около ванны, Foscarini.
Ванна в спальне — эффектное и необычное решение. Ванна, Paa. Стеллаж выполнен по индивидуальному
эскизу дизайнера, AM Classic. Смеситель, Cisal. Подвесные светильники,
Foscarini. Подиум выполнен из широкоформатного керамогранита Grespania Ceramica. Ванна в спальне — эффектное и необычное решение. Ванна, Paa. Стеллаж выполнен по индивидуальному
эскизу дизайнера, AM Classic. Смеситель, Cisal. Подвесные светильники,
Foscarini. Подиум выполнен из широкоформатного керамогранита Grespania Ceramica.
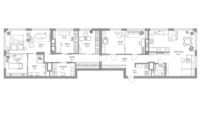
Пространство четко разделено по границе двух квартир на приватную и общественную зону. В правой части расположились входная группа, гостевой санузел, гостиная-кухня, гостевая и детская комнаты. Коридор, как единая ось от гостиной до мастер-блока, соединяет оба блока. Ниже по оси находятся технические помещения: прихожая, зона хранения, постирочная. Слева — комнаты для жизни и отдыха родителей: два кабинета, спальня, душевая и спа-комната.
В коридоре, связывающем обе части квартиры, находится основная система хранения — встроенные шкафы под основной объем вещей. Картина «Мед», Антонина Пещерская. В коридоре, связывающем обе части квартиры, находится основная система хранения — встроенные шкафы под основной объем вещей. Картина «Мед», Антонина Пещерская.
Массажная комната отделена от спальни и санузла стеклянными перегородками Union и реечными перегородками итальянской фабрики Rimadesio. Массажная комната отделена от спальни и санузла стеклянными перегородками Union и реечными перегородками итальянской фабрики Rimadesio. 
Массажная комната. Шкаф и стеллаж, AM Classic. Перегородка, Rimadesio. Стеклянные перегородки с серым стеклом, Union. Массажная комната. Шкаф и стеллаж, AM Classic. Перегородка, Rimadesio. Стеклянные перегородки с серым стеклом, Union.
Кабинеты совмещают функцию хранения. Оба супруга занимаются бизнесом и ценят каждую минуту, поэтому им крайне важны были и место для работы, и личный гардероб. Дизайнерам удалось объединить пространства, но не изолировать. Чтобы не перекрывать свет, падающий из окна, установили раздвижные двери из стекла.
Стены и потолок в кабинете главы семьи — глубоко-лилового цвета, который поддерживает потрясающее лилово-бордовое кресло Vitra и комод Cattelan Italia, на стеклянных дверцах которого угадываются песочные барханы. Рабочий стол, AM Classic. Гардероб, Pianca. Картина «Тихий вечер», Ирина Толстая. Декоративный конус, автор Мария Катасонова. Стены и потолок в кабинете главы семьи — глубоко-лилового цвета, который поддерживает потрясающее лилово-бордовое кресло Vitra и комод Cattelan Italia, на стеклянных дверцах которого угадываются песочные барханы. Рабочий стол, AM Classic. Гардероб, Pianca. Картина «Тихий вечер», Ирина Толстая. Декоративный конус, автор Мария Катасонова.
Для кабинета хозяйки дизайнер подобрала оттенок Тиффани. Этот благородный цвет повторен в мебели от португальской фабрики AM Classic со вставками из матового золота. А украшением помещения стала удобная и компактная кушетка Minotti. «Она так и манит провести весь день за книгой — хозяйка этой комнаты очень любит читать, любит ухаживать за собой, и весь интерьер «шепчет» нам о секретах этой разумной, красивой и мудрой модницы», — улыбается Елена. Для кабинета хозяйки дизайнер подобрала оттенок Тиффани. Этот благородный цвет повторен в мебели от португальской фабрики AM Classic со вставками из матового золота. А украшением помещения стала удобная и компактная кушетка Minotti. «Она так и манит провести весь день за книгой — хозяйка этой комнаты очень любит читать, любит ухаживать за собой, и весь интерьер «шепчет» нам о секретах этой разумной, красивой и мудрой модницы», — улыбается Елена.
Еще один нестандартный ход — постирочная. Ее обустроили в приватной зоне и оформили подчеркнуто роскошно, чтобы функция не угнетала, а радовала хозяев качеством и технологичностью. Смелой по замыслу получилась и спальня с ванной, установленной на подиуме у окна.
Детская комната разделена при помощи раздвижной перегородки на две части: спальню для малыша и зону отдыха с диваном, которая сейчас выполняет функции спальни для няни или бабушки, а в будущем станет полноценным рабочим местом для ребенка. Шкаф с медведем, Tumidei. Шкаф, Alf Dafre. Диван, Ditre Italia. Плед, Vitra. Ковры, kover.ru. Детская комната разделена при помощи раздвижной перегородки на две части: спальню для малыша и зону отдыха с диваном, которая сейчас выполняет функции спальни для няни или бабушки, а в будущем станет полноценным рабочим местом для ребенка. Шкаф с медведем, Tumidei. Шкаф, Alf Dafre. Диван, Ditre Italia. Плед, Vitra. Ковры, kover.ru.
Особая гордость
дизайнера — гостевой санузел. «Нам хотелось сделать его как открытку, — говорит
Елена Булович. — Даже не передать словами, как кропотливо и долго мы искали
большеформатный керамический декор, подходящий по настроению. Выбор пал на
тонкий глянцевый керамогранит в оттенке пыльная роза, имитирующий редкий
мрамор». Раковина, зеркало, сантехника, Cielo. Сантехника,
Cielo. Керамогранит, FMG. Особая гордость
дизайнера — гостевой санузел. «Нам хотелось сделать его как открытку, — говорит
Елена Булович. — Даже не передать словами, как кропотливо и долго мы искали
большеформатный керамический декор, подходящий по настроению. Выбор пал на
тонкий глянцевый керамогранит в оттенке пыльная роза, имитирующий редкий
мрамор». Раковина, зеркало, сантехника, Cielo. Сантехника,
Cielo. Керамогранит, FMG.
«Мы создали очень теплый, живой интерьер, сочетая натуральные материалы и сочные оттенки, — размышляет дизайнер. — Пространство получилось современным по настроению и очень эмоциональным, хочется разглядывать его каждый уголок. К тому же оно предельно выверенное как в плане планировки, так и с точки зрения удобства для жизни».
Планировка. Планировка.
Автор проекта дизайнер Елена Булович, основатель студии BULOVICH STUDIO.