Из старой мансарды — в уютные апартаменты: как дизайнеры создали современный интерьер
Архитектор Елена Читкарова и ее дочь Анна превратили старую мансарду в Замоскворечье в элегантные двухуровневые апартаменты — с небом вместо потолка и атмосферой пятизвездочного уюта.
23 фото
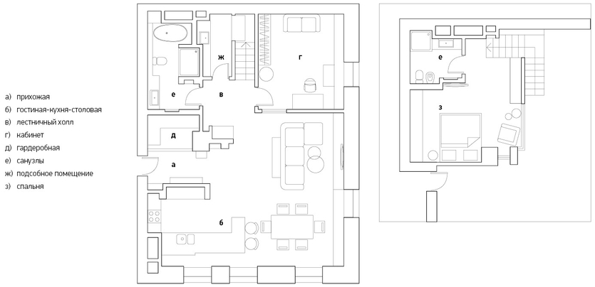
Площадь: 140 кв. м
Елена, расскажите, как началась работа над этим объектом?
Впервые я зашла в этот дом 1899 года постройки несколько лет назад. Более ста лет назад здесь был ликеро-водочный склад, позже здание реконструировали под жилой дом. Большинство подобных объектов оформляют в индустриальной эстетике, но мы с заказчицей решили отказаться от кирпича и брутальных балок в пользу современного контемпорари — с деревом, стеклом и натуральным камнем.
В гостиной было врезано второе окно, это добавило света и зрительно увеличило пространство. На полу — инженерная доска из термодуба Bauwerk (Швейцария). Стены — панели из термодуба с латунными вставками, выполненные на заказ в Италии. Диван, комод, Henge. Кофейные столики, ковер, Baxter. Вазы 101 Copenhagen, GK Concept. Декоративные подушки, Ateliertati. На консоли слева — настольная лампа с круглым абажуром Oluce, шоурум Plush; справа — настольная лампа Henge. Домики Ethnicraft, интерьерный салон «Предметы». В гостиной было врезано второе окно, это добавило света и зрительно увеличило пространство. На полу — инженерная доска из термодуба Bauwerk (Швейцария). Стены — панели из термодуба с латунными вставками, выполненные на заказ в Италии. Диван, комод, Henge. Кофейные столики, ковер, Baxter. Вазы 101 Copenhagen, GK Concept. Декоративные подушки, Ateliertati. На консоли слева — настольная лампа с круглым абажуром Oluce, шоурум Plush; справа — настольная лампа Henge. Домики Ethnicraft, интерьерный салон «Предметы».
В гостиной было врезано второе окно, это добавило света и зрительно увеличило пространство. На полу — инженерная доска из термодуба Bauwerk (Швейцария). Стены — панели из термодуба с латунными вставками, выполненные на заказ в Италии. Диван, Henge. Кофейные столики, ковер, Baxter. Вазы 101 Copenhagen, GK Concept. Декоративные подушки, Ateliertati. В гостиной было врезано второе окно, это добавило света и зрительно увеличило пространство. На полу — инженерная доска из термодуба Bauwerk (Швейцария). Стены — панели из термодуба с латунными вставками, выполненные на заказ в Италии. Диван, Henge. Кофейные столики, ковер, Baxter. Вазы 101 Copenhagen, GK Concept. Декоративные подушки, Ateliertati. 
Лена, в этом проекте вам помогала дочь. Как вы делите роли в совместных проектах?
Анна: Мы давно работаем как полноценные партнеры. Мама с уважением относится к моему опыту и взгляду на пространство. Я же стараюсь находить решения, если наши мнения расходятся.
Елена: Анна — выпускница Британской школы дизайна и Политехнического института в Милане. Сотрудничала с архитектурным бюро Пьеро Лиссони, участвовала в его проектах в Милане и Дубае. Уже больше 10 лет она полноправный соавтор моих интерьеров.
Зона столовой. Обеденный ансамбль составили стол (бронзовое литье, столешница из прессованной древесины нескольких экзотических пород) и стулья итальянского бренда Henge. Ваза Luscar, Woodzenart. Зона столовой. Обеденный ансамбль составили стол (бронзовое литье, столешница из прессованной древесины нескольких экзотических пород) и стулья итальянского бренда Henge. Ваза Luscar, Woodzenart.

Проект затянулся почти на три года. Почему?
Начали во время пандемии, когда стройки были запрещены. Плюс согласование — я предложила увеличить площадь со 100 до 140 м², что требовало колоссальной бумажной работы. В итоге пространство стало светлее, появилась жилая антресоль. Мы добавили окна в крыше — теперь вся квартира наполнена дневным светом. На окнах установлена метеостанция, отчего зимой стекло подогревается и не обмерзает. Архитектуру помещений дополнила мебель таких марок, как Henge, Walter Knoll, Baxter, свет от Occhio и сантехника Antonio Lupi.
Зона камина. Камин с облицовкой из брашированной платины, изготовлен по индивидуальному заказу фабрикой Henge. Панно, Марго Якунчева, BakeBoneBuro. Зона камина. Камин с облицовкой из брашированной платины, изготовлен по индивидуальному заказу фабрикой Henge. Панно, Марго Якунчева, BakeBoneBuro. 
Фрагмент гостиной. Стеллаж, светильники, Henge. Скульптура Ferm Living, GK Concept. Фрагмент гостиной. Стеллаж, светильники, Henge. Скульптура Ferm Living, GK Concept.
Каковы были пожелания заказчицы?
Это молодая женщина, чья работа связана с ресторанным бизнесом. Она много путешествует, предпочитает пятизвездочные отели — отсюда требования к материалам: орех, эвкалипт, дуб, натуральный камень. Интерьер выполнен в сдержанных серо-бежевых тонах с единичными акцентами в терракоте и темно-зеленых тонах.
На второй, приватный этаж ведет небольшая лестница. Проход оформлен панелями из термодуба. На второй, приватный этаж ведет небольшая лестница. Проход оформлен панелями из термодуба.
Вид из прихожей на зону гостиной. Консоль, лавка, Henge. Вазы, Woodzenart. Вид из прихожей на зону гостиной. Консоль, лавка, Henge. Вазы, Woodzenart.
Чем для вас примечателен этот объект?
Изобилием света. Он словно диктовал стиль — элегантный модерн с отсылками к первой половине XXI века. Мы уверены: и через десять лет интерьер останется актуальным.
Кабинет. Библиотека и стеллажи — столярное производство (Италия). Диван, De Sede. Пуфики, столик, Henge. Светильники, Occhio. Кабинет. Библиотека и стеллажи — столярное производство (Италия). Диван, De Sede. Пуфики, столик, Henge. Светильники, Occhio.
Санузел на первом этаже. Ванна, Antonio Lupi. Смеситель, Dornbracht. Аксессуары для ванной, Pinetti. Санузел на первом этаже. Ванна, Antonio Lupi. Смеситель, Dornbracht. Аксессуары для ванной, Pinetti.
Наблюдаете ли вы изменение вкусов у заказчиков?
Да, они всё чаще выбирают натуральные материалы, мода на керамогранит в отделке в прошлом, сейчас это мрамор. Например, здесь мы использовали итальянский Quattro Stagioni. Люди стали финансово грамотнее, можно сказать, более расчетливыми — путешествуют, знают реальные цены, планируют всё до мелочей.
Спальня хозяйки. Кровать, Wittmann. Столики, Baxter. Над кроватью — металлический светильник, Henge. Ваза — собственность заказчицы, автор Константин Становов. На прикроватном столике — скульптуры в виде птиц работы Алексея Дубинского, Sample. Постельное белье, покрывало, Ateliertati. Спальня хозяйки. Кровать, Wittmann. Столики, Baxter. Над кроватью — металлический светильник, Henge. Ваза — собственность заказчицы, автор Константин Становов. На прикроватном столике — скульптуры в виде птиц работы Алексея Дубинского, Sample. Постельное белье, покрывало, Ateliertati.
Фрагмент спальни хозяйки. Апартамент изначально был темным и, казалось бы, неподходящим по стилю молодой хозяйке, ведущей активный образ жизни. Однако в результате расширения площади второго этажа помещение преобразилось. Новшества коснулись и кровли — было добавлено несколько дополнительных окон, что дало помещениям больше света, а в квартире появилось несколько спален. Кресло, Baxter. Торшер с ножкой из травертина, Henge. Ваза работы Константина Становова. Фрагмент спальни хозяйки. Апартамент изначально был темным и, казалось бы, неподходящим по стилю молодой хозяйке, ведущей активный образ жизни. Однако в результате расширения площади второго этажа помещение преобразилось. Новшества коснулись и кровли — было добавлено несколько дополнительных окон, что дало помещениям больше света, а в квартире появилось несколько спален. Кресло, Baxter. Торшер с ножкой из травертина, Henge. Ваза работы Константина Становова.
Санузел на втором этаже. Для отделки выбран итальянский мрамор Quattro Stagioni с выразительным природным рисунком. Санузел на втором этаже. Для отделки выбран итальянский мрамор Quattro Stagioni с выразительным природным рисунком.
Есть ли секреты, которые вы не раскрываете в интервью об объектах?
Это детали о личности клиентов. Я считаю, что хороший интерьер и так расскажет о своем владельце. А доверие — залог будущих проектов.
Планировка. Планировка.