От авангарда до ар-деко: эклектичная квартира в центре Москвы
Проект дизайнера Алексии Братушковой выстроен на диалоге разных стилей.
27 фото
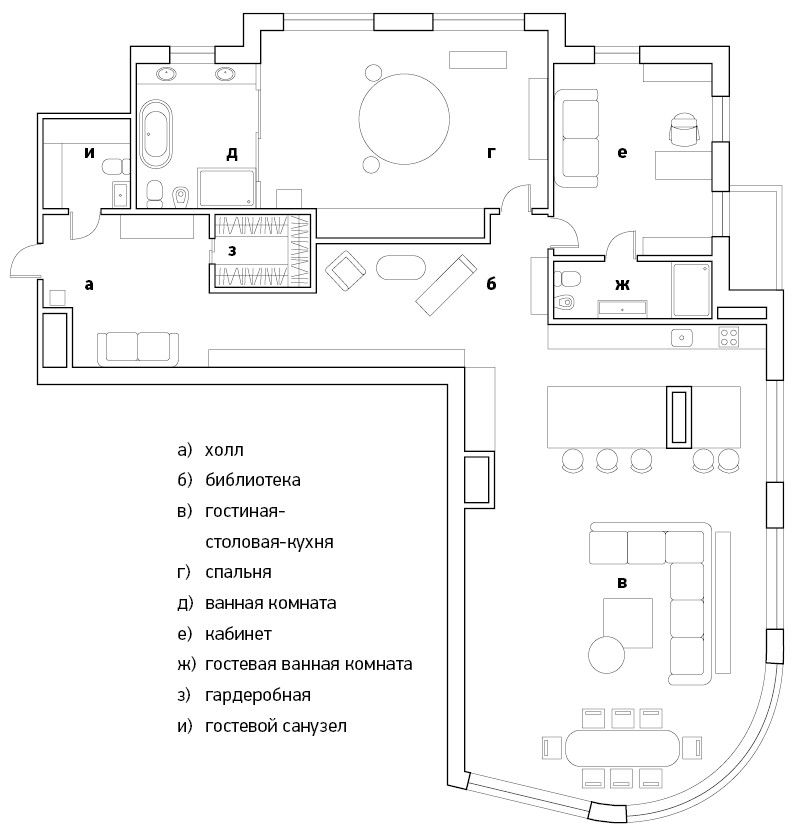
Площадь: 199 кв. м
Квартира расположена в клубном доме премиум-класса, в самом сердце столицы, на Патриарших прудах. Заказчики — прогрессивная пара с космополитичными взглядами на дизайн, поэтому команде бюро во главе с Алексией Братушковой предстояло органично соединить несколько стилевых направлений. Отправной точкой проекта стал авангард — его черты считываются в архитектуре дома. «Для меня важно подчеркнуть связь между интерьером и экстерьером, — говорит Алексия Братушкова. — Так, в этом проекте фасад дома облицован мраморированным известняком молочного цвета — тот же известняк мы добавили в композицию из геометричных элементов в зоне гостиной. А оттенки зеленого в кабинете и санузлах перекликаются с цветом французских балкончиков на фасаде дома».
Зона столовой. Стол по дизайну Ээро Сааринен, Knoll. Стулья, «ТРИО-интерьер». Люстра Dio D’Arte (Дио Дарте), Rum24 (Рум24). На полу — белый мрамор. Зона столовой. Стол по дизайну Ээро Сааринен, Knoll. Стулья, «ТРИО-интерьер». Люстра Dio D’Arte (Дио Дарте), Rum24 (Рум24). На полу — белый мрамор.
Вид на гостиную. Акцентная ТВ-стена из натурального травертина создает эффектный контраст с другими фактурами — натуральным деревом, текстилем и хрусталем. Обеденный стол, Knoll. Стулья, диван Flexform (Флексформ), аксессуары Kartell, ваза 101 Copenhagen (101 Копенгаген) — «ТРИО-интерьер». Люстра над столом, Dio D’Arte (Дио Дарте), подвесной светильник Martinelli (Мартинелли) — Rum24 (Рум24). Картина по мотивам работ Янниса Моралиса, Юлия Гонтье. Вид на гостиную. Акцентная ТВ-стена из натурального травертина создает эффектный контраст с другими фактурами — натуральным деревом, текстилем и хрусталем. Обеденный стол, Knoll. Стулья, диван Flexform (Флексформ), аксессуары Kartell, ваза 101 Copenhagen (101 Копенгаген) — «ТРИО-интерьер». Люстра над столом, Dio D’Arte (Дио Дарте), подвесной светильник Martinelli (Мартинелли) — Rum24 (Рум24). Картина по мотивам работ Янниса Моралиса, Юлия Гонтье.
Изначальная планировка квартиры отвечала всем пожеланиям заказчиков. Просторный холл плавно перетекает в общее пространство гостиной, столовой и кухни. В нем же обустроили уютную зону библиотеки. В приватном блоке — хозяйская спальня со своим санузлом и кабинет, который может в будущем послужить и гостевой, и детской. В основу интерьерной концепции легло творчество нидерландского художника-графика Маурица Корнелиса Эшера. Эксперименты с формой, перспективой и логикой пространства в его работах на стыке сюрреализма и поп-арта отражают характер проекта — многослойный, динамичный, построенный на контрастах. К гравюрам Эшера отсылает геометричное панно из нескольких сортов мрамора в холле, его же литографии украшают стены кабинета.
Насыщенный синий цвет аксессуаров и диванных подушек выступает точечным акцентом, который добавляет интерьеру глубину и выразительность. Журнальные столики, АртФабрик. Ковер, «Ами Ковры». На полу — белый мрамор. Диван, Flexform (Флексформ), «ТРИО-интерьер». Подушки и текстиль, Алексия Братушкова. Справа зона библиотеки. Здесь предусмотрели стильное кресло-шезлонг, на котором можно комфортно устроиться с книгой или ноутбуком. А особый шарм уголку придают картина и зеркальное панно из личной коллекции заказчиков. Напольное покрытие из массива американского ореха, компания «Олимп паркета». Стены окрашены краской Sanderson, компания Decorroom (ДекорРум). Шезлонг Cattelan Italia, «ТРИО-интерьер». Кресло, Hamilton Conte (Гамильтон Конте). Насыщенный синий цвет аксессуаров и диванных подушек выступает точечным акцентом, который добавляет интерьеру глубину и выразительность. Журнальные столики, АртФабрик. Ковер, «Ами Ковры». На полу — белый мрамор. Диван, Flexform (Флексформ), «ТРИО-интерьер». Подушки и текстиль, Алексия Братушкова. Справа зона библиотеки. Здесь предусмотрели стильное кресло-шезлонг, на котором можно комфортно устроиться с книгой или ноутбуком. А особый шарм уголку придают картина и зеркальное панно из личной коллекции заказчиков. Напольное покрытие из массива американского ореха, компания «Олимп паркета». Стены окрашены краской Sanderson, компания Decorroom (ДекорРум). Шезлонг Cattelan Italia, «ТРИО-интерьер». Кресло, Hamilton Conte (Гамильтон Конте).

Кабинет. Над диваном — литографии по мотивам работ нидерландского художника-графика Маурица Корнелиса Эшера, студия Анастасии Немоляевой. Они перекликаются с напольным панно в холле, которое тоже выполнено по мотивам его работ. Диван выполнен на заказ, Creatica. На стенах — краска Sanderson, компания Decorroom (ДекорРум). Ковер, «Ами Ковры». Деревянные жалюзи из американского ореха, Алексия Братушкова. Торшер Freya, Rum 24 (Рум24). Подушки, Eichholtz (Эйхольц). Кабинет. Над диваном — литографии по мотивам работ нидерландского художника-графика Маурица Корнелиса Эшера, студия Анастасии Немоляевой. Они перекликаются с напольным панно в холле, которое тоже выполнено по мотивам его работ. Диван выполнен на заказ, Creatica. На стенах — краска Sanderson, компания Decorroom (ДекорРум). Ковер, «Ами Ковры». Деревянные жалюзи из американского ореха, Алексия Братушкова. Торшер Freya, Rum 24 (Рум24). Подушки, Eichholtz (Эйхольц).
Заказчики отдают предпочтение натуральным материалам, поэтому весь интерьер построен на сочетании камня разных сортов, дерева и текстиля. Стилевые решения тоже сосуществуют в полной гармонии: строгая геометрия авангарда, скругленные формы ар-деко, живопись в стиле супрематизм… Такой подход вносит в интерьер жизнь и динамику, а спокойная цветовая палитра с ненавязчивыми акцентами уравновешивает этот эклектичный микс.
Зона кухни. Белые глянцевые фасады отражают потоки света из панорамных окон и делают кухню визуально более просторной. Кухня изготовлена на заказ (МДФ, эмаль под высоким глянцем), Алексия Братушкова. Столешница выполнена из кварцевого агломерата «Белая Тайга» от АВАРУС, «ГримаСтоун». Техника, Miele (Миле). Барные стулья, Adele (Адель). Светильники, Rum24 (Рум24). Зона кухни. Белые глянцевые фасады отражают потоки света из панорамных окон и делают кухню визуально более просторной. Кухня изготовлена на заказ (МДФ, эмаль под высоким глянцем), Алексия Братушкова. Столешница выполнена из кварцевого агломерата «Белая Тайга» от АВАРУС, «ГримаСтоун». Техника, Miele (Миле). Барные стулья, Adele (Адель). Светильники, Rum24 (Рум24).
Спальня хозяев. Прозрачные перегородки Rimadesio (Римадезио) создают ощущение текучего пространства, где ванная комната логично продолжает зону спальни. Кровать Ivano Redaelli (Ивано Редаелли), торшер от Miniforms (Миниформс), светильник Bover (Бовер), перегородки — «ТРИО-интерьер». Текстиль и портьеры, Алексия Братушкова. Ковер «Ами Ковры». Столик, Артфабрик. Спальня хозяев. Прозрачные перегородки Rimadesio (Римадезио) создают ощущение текучего пространства, где ванная комната логично продолжает зону спальни. Кровать Ivano Redaelli (Ивано Редаелли), торшер от Miniforms (Миниформс), светильник Bover (Бовер), перегородки — «ТРИО-интерьер». Текстиль и портьеры, Алексия Братушкова. Ковер «Ами Ковры». Столик, Артфабрик.
Гостиная — сердце всей квартиры. Благодаря панорамным окнам по всему периметру здесь много естественного света, а нежная молочно-белая гамма поддерживает эффект легкости и воздушности. Пространство удачно зонирует сама форма помещения — в центре скругленного эркера разместили обеденную зону с овальным столом, где хозяева могут собираться вместе с семьей и гостями. С другой стороны — небольшой остров отделяет зону кухни. Ритм всей общей зоне задает акцентная ТВ-стена из травертина с геометричным рисунком.
Фрагмент спальни. Над комодом — акцентная работа «Женщина с бабочками» ливанского фотографа Диего Иббара Санчеса. Сочный оранжевый оттенок проходит через интерьер цветовым мотивом — его ритм подхватывают настольные лампы и декоративные подушки. Комод от Cattelan Italia, «ТРИО-интерьер». Настольные лампы St-Luce, Rum24 (Рум24). Фрагмент спальни. Над комодом — акцентная работа «Женщина с бабочками» ливанского фотографа Диего Иббара Санчеса. Сочный оранжевый оттенок проходит через интерьер цветовым мотивом — его ритм подхватывают настольные лампы и декоративные подушки. Комод от Cattelan Italia, «ТРИО-интерьер». Настольные лампы St-Luce, Rum24 (Рум24).
Фрагменты холла. Геометричное черно-белое панно на полу выполнено из итальянского мрамора и отсылает к работам Маурица Корнелиса Эшера. Диван Francesco Molon (Франческо Молон), «ТРИО-интерьер». Картина по мотивам работ Анри Матисса, Юлия Гантье. Краска Sanderson, компания Decorroom (ДекорРум). Фрагменты холла. Геометричное черно-белое панно на полу выполнено из итальянского мрамора и отсылает к работам Маурица Корнелиса Эшера. Диван Francesco Molon (Франческо Молон), «ТРИО-интерьер». Картина по мотивам работ Анри Матисса, Юлия Гантье. Краска Sanderson, компания Decorroom (ДекорРум). 
Эксперименты с зонированием продолжаются и в приватном блоке. В самом центре спальни — эффектная круглая кровать. Она визуально разделяет пространство и задает ритм другим элементам мебели — мотив круга повторяется и в форме светильников, и в авангардном рисунке комода. «Создавая интерьеры, я стараюсь опираться не на тренды, а на характер и пожелания заказчиков, их личные истории. В этом проекте мне удалось воплотить идею смешения стилей, но спокойного и гармоничного. Так хозяева квартиры смогут легко добавлять в интерьер детали, наполнять свой дом новыми смыслами, при этом общая концепция не нарушится», — заключает Алексия.
Фрагменты холла. Комод Francesco Molon (Франческо Молон), «ТРИО-интерьер». Настольные лампы, Abhiika (Абхика). Фрагменты холла. Комод Francesco Molon (Франческо Молон), «ТРИО-интерьер». Настольные лампы, Abhiika (Абхика).
Ванная комната. Взгляд сразу приковывает композиция из дерева — изящная отсылка к работам восточных мастеров. Сочетание стекла и натурального камня теплого шоколадного оттенка придает обстановке нотку утонченности и респектабельности. Стены отделаны натуральным травертином. Ванна, сантехника и аксессуары Gessi (Гесси), «Европейская Сантехника». Светильник Bover (Бовер), «ТРИО- интерьер». Бонсай, компания «РОССКА». Ванная комната. Взгляд сразу приковывает композиция из дерева — изящная отсылка к работам восточных мастеров. Сочетание стекла и натурального камня теплого шоколадного оттенка придает обстановке нотку утонченности и респектабельности. Стены отделаны натуральным травертином. Ванна, сантехника и аксессуары Gessi (Гесси), «Европейская Сантехника». Светильник Bover (Бовер), «ТРИО- интерьер». Бонсай, компания «РОССКА».
Планировка. Планировка.