Элегантность вне времени: двухуровневая квартира в Москве
Сооснователь архитектурного бутика Ab-architects Ведран Бркич создал интерьер с оригинальной планировкой, наполненный воздухом, светом и ощущением вневременной элегантности.
28 фото
Площадь: 215 кв. м
В самом центре Москвы, где исторический облик города встречается с современным дизайном, находится двухуровневая квартира-резиденция. Ее уникальное расположение на первом этаже с прямым выходом во внутренний двор задало тон всей концепции проекта: уединенный оазис, тщательно оберегаемый от посторонних взглядов, но при этом наполненный светом и воздухом. Этот баланс был достигнут благодаря изящным ставням на выходящих в оживленный двор панорамных окнах. Они не только обеспечили приватность, мягко отделив частную жизнь от внешнего мира, но и наполнили интерьер игрой рассеянного света.
Гостиная. Диван, B&B Italia («ББ Италия»). Журнальные столики, стул, Красиво как раньше. Ковер, Dovlet House, LabDesign. Гостиная. Диван, B&B Italia («ББ Италия»). Журнальные столики, стул, Красиво как раньше. Ковер, Dovlet House, LabDesign.
Гостиная. Панель, за которой скрыта стойка с винилом и аудиооборудованием, шкаф витрина «Титан-Мебель». Декор, Иззи Декор и «Санд Винтаж». Кожаный черный стул, газетница, Красиво как раньше. Гипсовая лепнина на стенах, «Дикарт». Гостиная. Панель, за которой скрыта стойка с винилом и аудиооборудованием, шкаф витрина «Титан-Мебель». Декор, Иззи Декор и «Санд Винтаж». Кожаный черный стул, газетница, Красиво как раньше. Гипсовая лепнина на стенах, «Дикарт».

Идея проекта родилась из диалога. Заказчики, вдохновившись увиденной работой бутика, обратились с лаконичным и емким пожеланием: «Мы хотим вот так». В качестве ориентира была выбрана «Московская Сиеста» — знаковый проект Ab-architects, ранее опубликованный на обложке журнала SALON-interior. Однако вместо копирования интерьера архитекторы взяли за основу общее направление — современный стиль с классическими акцентами, лепниной и ощущением вневременной элегантности.
Слева столовая зона. Обеденный стол, «Титан-Мебель». Стулья индивидуального изготовления, Reloft. Люстра над столом, Foscarini (Фоскарини). Ставни, «Первая фабрика Шаттерсов». Вазы, Иззи Декор и «Санд Винтаж». Справа зона кухни. Кухня, TM Italia (ТМ Италия), барные стулья, Saba Italia (Саба Италия), компания LabDesign. Слева столовая зона. Обеденный стол, «Титан-Мебель». Стулья индивидуального изготовления, Reloft. Люстра над столом, Foscarini (Фоскарини). Ставни, «Первая фабрика Шаттерсов». Вазы, Иззи Декор и «Санд Винтаж». Справа зона кухни. Кухня, TM Italia (ТМ Италия), барные стулья, Saba Italia (Саба Италия), компания LabDesign.
Кабинет. Кресло раскладное, Flou. Кофейный столик, Красиво как раньше. Торшер, Crate & Barrel. Рабочий стол, Minotti. Офисное кресло, Poltrona Frau (Полтрона Фрау). Стеллаж, скрытый в стене, «Титан-Мебель». Декор, Иззи Декор. Кабинет. Кресло раскладное, Flou. Кофейный столик, Красиво как раньше. Торшер, Crate & Barrel. Рабочий стол, Minotti. Офисное кресло, Poltrona Frau (Полтрона Фрау). Стеллаж, скрытый в стене, «Титан-Мебель». Декор, Иззи Декор.

Интерьер стал настоящим вызовом с точки зрения функциональности. «Особой сложностью стала планировка первого уровня, чья площадь заметно уступала второму этажу. Ее приходилось буквально «собирать как тетрис». В компактном объеме органично расположились гостиная, объединенная с кухней и столовой, кабинет — гостевая спальня, гостевой санузел, прачечная, кладовая и два входа, один из которых мы замаскировали под шкаф. Второй этаж был отведен под приватные апартаменты: главную спальню с гардеробной и санузлом, а также три детских блока, каждый с индивидуальной гардеробной и ванной комнатой», — рассказывает автор проекта Ведран Бркич. Каждый сантиметр площади был использован с исключительной рациональностью. Низкий диван не перекрывает визуальные оси, подоконник у обеденного стола превращен в удобную банкетку, а за безупречными фасадами скрыты и парковка для робота-пылесоса, и аудиофильская система с коллекцией виниловых пластинок.
Холл второго этажа. Стеклянное ограждение, «Сторонкин ПРО». Межкомнатные двери, «Титан-Мебель». Бра, Contain (Контейн). Паркет, Finex.
Спальня девочки. Кровать с мягким изголовьем, «Титан-Мебель». Стеллаж, Cattelan Italia. Прикроватная тумбочка, Lema (Лема). Подвесной светильник, Marset (Марсет). Спальня девочки. Кровать с мягким изголовьем, «Титан-Мебель». Стеллаж, Cattelan Italia. Прикроватная тумбочка, Lema (Лема). Подвесной светильник, Marset (Марсет).
Спальня второй девочки. Кровать, Bonaldo (Бональдо). Консоль, зеркало, «Титан-Мебель». Пуф, Ana Roque Interiors (Ана Роке). Спальня второй девочки. Кровать, Bonaldo (Бональдо). Консоль, зеркало, «Титан-Мебель». Пуф, Ana Roque Interiors (Ана Роке).
Гибкость и комфорт обеспечивают не только умная планировка, но и передовые технологии. Комплексная система «умный дом» управляет климатом, безопасностью и мультимедиа, а многоуровневые сценарии освещения создают атмосферу, идеальную для любого времени суток и настроения. Все технические элементы тщательно интегрированы, сохраняя визуальную чистоту интерьера, выдержанного в сдержанной палитре молочных оттенков и благородной слоновой кости.
Спальня мальчика. Кровать, Bonaldo (Бональдо). Тумбочка, Pianca (Пьянка). Шкаф, «Титан-Мебель». Подвесной светильник, Vibia. Краска на стенах, Flugger. Постельное белье, АтельеТати. Пошив штор Марилюкс, LabDesign. Спальня мальчика. Кровать, Bonaldo (Бональдо). Тумбочка, Pianca (Пьянка). Шкаф, «Титан-Мебель». Подвесной светильник, Vibia. Краска на стенах, Flugger. Постельное белье, АтельеТати. Пошив штор Марилюкс, LabDesign.
Спальня хозяев. Кровать с мягким изголовьем, Bonaldo (Бональдо). Прикроватная тумбочка, Pianca (Пьянка). Подвесной светильник, Penta (Пента). Ковер, Tapis Rouge. Композиция из консоли зеркала и рамы для ТВ, «Титан-Мебель». Кресло, Ondarreta (Ондаррета). Спальня хозяев. Кровать с мягким изголовьем, Bonaldo (Бональдо). Прикроватная тумбочка, Pianca (Пьянка). Подвесной светильник, Penta (Пента). Ковер, Tapis Rouge. Композиция из консоли зеркала и рамы для ТВ, «Титан-Мебель». Кресло, Ondarreta (Ондаррета).
Контраст строится не на цвете, а на нюансах фактур и температуре материалов. Теплый выбеленный дуб и натуральный травертин создают текстурный дуэт, формируя ауру спокойной роскоши. Архитекторы во главе с автором проекта позволили интерьеру формироваться в диалоге с заказчиком. Здесь, при четком запросе, они создали уникальный интерьер — пространство вневременной ценности, где рациональность планировки и поэзия восприятия существуют в идеальном балансе.
Слева ванная комната. Ванна, Bette (Бетте). Керамогранит, Archskin. Смеситель, Zucchetti (Дзукетти), компания «Европейская Сантехника». Справа санузел мальчика. Душевое ограждение, «Сторонкин ПРО». Смесители, Remer (Ремер), «Европейская Сантехника». Раковина, Cielo. Зеркало, «Титан-Мебель». Керамогранит, Archskin. Слева ванная комната. Ванна, Bette (Бетте). Керамогранит, Archskin. Смеситель, Zucchetti (Дзукетти), компания «Европейская Сантехника». Справа санузел мальчика. Душевое ограждение, «Сторонкин ПРО». Смесители, Remer (Ремер), «Европейская Сантехника». Раковина, Cielo. Зеркало, «Титан-Мебель». Керамогранит, Archskin.

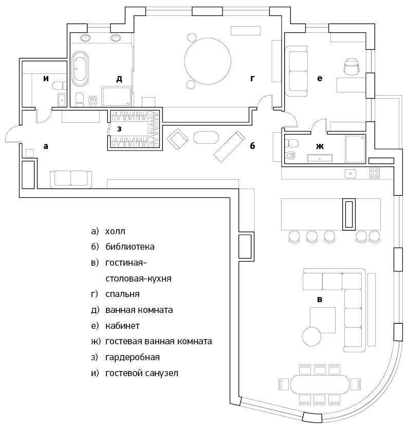
Планировка. Планировка.
Холл второго этажа. Стеклянное ограждение, «Сторонкин ПРО». Межкомнатные двери, «Титан-Мебель». Бра, Contain (Контейн). Паркет, Finex.