Респектабельный городской интерьер в темных тонах
Дизайнер Оксана Мокриенко создала интерьер, вдохновленный панорамой Ленинградского проспекта.
22 фото
Площадь: 135 кв. м
Апартаменты, расположенные в современном жилом комплексе Prime Park на Ленинградском проспекте, — это воплощенный в интерьере диалог с энергией мегаполиса. Панорамные видовые окна, открывающие городской пейзаж, задали тон всему проекту: утонченная респектабельная атмосфера, лишенная суеты, но полная внутреннего ритма.
Вид на столовую. На фоне паркета с благородной сединой особенно выразительно смотрится диван глубокого зеленого цвета, темный стол и бархатные стулья — всё Poliform. Столовую зону акцентирует подвесной светильник My Line от Emmemobili — легкий, графичный, он формирует красивый вечерний сценарий света. Строительные и отделочные работы, компания «Олимпстройсервис». Поставка мебели, интерьерный салон GL Studio. Вид на столовую. На фоне паркета с благородной сединой особенно выразительно смотрится диван глубокого зеленого цвета, темный стол и бархатные стулья — всё Poliform. Столовую зону акцентирует подвесной светильник My Line от Emmemobili — легкий, графичный, он формирует красивый вечерний сценарий света. Строительные и отделочные работы, компания «Олимпстройсервис». Поставка мебели, интерьерный салон GL Studio.
Задача, которую поставили перед дизайнером владельцы — семейная пара с уже взрослыми детьми, — была смелой и концептуальной. Имея в портфолио другой, светлый и спокойный интерьер, созданный для этих клиентов, дизайнер предложила кардинально иное решение: «проникновенный городской интерьер». «Насыщенная цветовая палитра, сложные фактуры, игра контрастов и пластичные формы. Эта идея нашла мгновенный отклик и лишь усилилась в процессе реализации», — дополняет автор проекта Оксана Мокриенко.

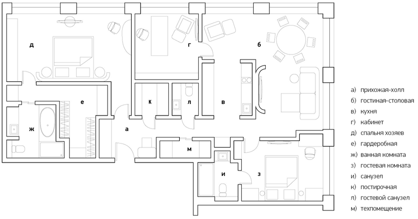
Исходная планировка квартиры стала отличной базой для новой планировочной структуры. Все ключевые зоны — кухня, спальня и санузлы — остались на своих местах. Дизайнер дополнила пространство тем, что было необходимо для комфортной жизни семьи: появились отдельный кабинет, гостевая комната с собственной ванной и технические помещения, включая постирочную. С местами хранения тоже всё продумано: в главной спальне есть своя гардеробная, в прихожей — вместительные шкафы, в гостевой — шкафы и комод. В итоге приватная и гостевая зоны были четко разделены, а каждое помещение обрело ясное и удобное для своей функции место.
Вид из кухни на гостиную. Основное освещение в квартире построено на трековых системах от «Центрсвет», дающих ровный, современный по духу свет, позволяющий гибко управлять сценариями: можно менять направление света, акценты и яркость, подстраиваясь под разные задачи — от рабочего до расслабленного вечернего. Вид из кухни на гостиную. Основное освещение в квартире построено на трековых системах от «Центрсвет», дающих ровный, современный по духу свет, позволяющий гибко управлять сценариями: можно менять направление света, акценты и яркость, подстраиваясь под разные задачи — от рабочего до расслабленного вечернего.
Стилистика балансирует на грани лаконичного контемпорари и чувственного ар-деко. Первый задает чистую архитектуру пространства, второй вносит характер и театральность. Это читается в дугообразных линиях изголовья кровати, в декоративных светильниках, в графичных деталях отделки. Основа — благородные натуральные материалы, создающие «живую» фактуру: шпонированные панели, натуральный паркет, кожа, бархат. «Стол и ряд элементов также выполнены из шпона. Это соответствует текущим тенденциям — сегодня интерьеры стремятся к тактильности и «живости» материалов. Здесь мы сознательно пошли в сторону натуральной, богатой фактуры», — обращает внимание Оксана.
Кабинет. Письменный стол и кресло, Visionnaire. Стеллаж, Cattelan Italia. Для зоны отдыха выбраны кресло и пуф, Vitra. Осветительные приборы, Olev. Кабинет. Письменный стол и кресло, Visionnaire. Стеллаж, Cattelan Italia. Для зоны отдыха выбраны кресло и пуф, Vitra. Осветительные приборы, Olev.
Особое место заняло искусство. «Заказчица очень любит искусство. Она лично участвовала в выборе акцентных предметов и остановилась на работах из галереи Полины Аскери», — говорит автор. Эти картины стали не просто декором, а полноправными соавторами атмосферы, формирующими цветовые акценты и эмоциональный фон.
Фрагмент гостиной. Зеленое бархатное кресло, Flexform. За атмосферу отвечает торшер Cattelan Italia. Картина, Askeri Gallery.
Прихожая встречает интригующей, темной гаммой. Стены оформлены шпонированными панелями, выполненными мебельной компанией Helges, за счет чего пространство сразу кажется камерным и собранным. На полу — керамогранит итальянского бренда глубокого зеленого оттенка. Этот же материал, перетекая в гостиную и на кухонный остров, визуально объединяет открытое пространство.
Прихожая оформлена в темной, атмосферной подаче. «Для меня, как для дизайнера из Владивостока, каждый московский проект — это вдохновляющий опыт. Особое удовольствие — наблюдать, как идеи обретают форму благодаря слаженной работе команды», — говорит автор проекта Оксана Мокриенко. Консоль, Oasis. Зеркало, Cattelan Italia. Бра, Entrelacs. Прихожая оформлена в темной, атмосферной подаче. «Для меня, как для дизайнера из Владивостока, каждый московский проект — это вдохновляющий опыт. Особое удовольствие — наблюдать, как идеи обретают форму благодаря слаженной работе команды», — говорит автор проекта Оксана Мокриенко. Консоль, Oasis. Зеркало, Cattelan Italia. Бра, Entrelacs.
Кухня выполнена в компактном, почти гостевом формате — хозяева нечасто готовят дома, поэтому акцент сместился на эстетику и легкость. При этом кухня полностью функциональна. В кухонный остров интегрирована мойка и варочная поверхность. Вся основная бытовая техника собрана в высоких шкафах напротив, за счет чего кухня выглядит аккуратно и не перегружает гостиную. Кухня, Aster Cucine. Кухня выполнена в компактном, почти гостевом формате — хозяева нечасто готовят дома, поэтому акцент сместился на эстетику и легкость. При этом кухня полностью функциональна. В кухонный остров интегрирована мойка и варочная поверхность. Вся основная бытовая техника собрана в высоких шкафах напротив, за счет чего кухня выглядит аккуратно и не перегружает гостиную. Кухня, Aster Cucine.
В гостиной собрана спокойная, но выразительная композиция из премиальных итальянских брендов, подобранных совместно с интерьерным салоном GL Studio. Ее интерьер построен на элегантном контрасте: паркет с легким серебристым отливом служит фоном для изумрудного бархатного дивана, темного стола и латунных акцентов. Кабинет, выполненный в темных тонах, обретает визуальную легкость благодаря открытой библиотеке на металлических стойках и контрастному светлому рабочему месту. А спальня хозяев выдержана в глубоких шоколадных оттенках. На этом темном фоне выгодно выделяется светлая кровать с полукруглым изголовьем.
Спальня хозяев оформлена в глубоких шоколадных оттенках. Мебель подобрана на контрасте: внутри темной композиции расставлены светлые предметы мебели — кровать и круглые тумбочки от Frato, большие выразительные светильники Sigma L2, округлый туалетный столик Visionnaire, повторяющий мягкие линии изголовья. Подвесные светильники, Cattelan Italia. Строительные и отделочные работы, компания «Олимпстройсервис». Зеркало, кресло, Visionnaire. Спальня хозяев оформлена в глубоких шоколадных оттенках. Мебель подобрана на контрасте: внутри темной композиции расставлены светлые предметы мебели — кровать и круглые тумбочки от Frato, большие выразительные светильники Sigma L2, округлый туалетный столик Visionnaire, повторяющий мягкие линии изголовья. Подвесные светильники, Cattelan Italia. Строительные и отделочные работы, компания «Олимпстройсервис». Зеркало, кресло, Visionnaire.
Фрагмент спальни хозяев. Туалетный столик, кресло, Visionnaire. Фрагмент спальни хозяев. Туалетный столик, кресло, Visionnaire.
Ванная комната при спальне. Ванна установлена на подиуме с мягкой подсветкой, рядом — душевая и большая раковина. Всё оформлено так, чтобы приватная зона ощущалась как домашний спа‑уголок. Керамогранит, Max Fine. Светильники, Il Paralume Marina. Ванная комната при спальне. Ванна установлена на подиуме с мягкой подсветкой, рядом — душевая и большая раковина. Всё оформлено так, чтобы приватная зона ощущалась как домашний спа‑уголок. Керамогранит, Max Fine. Светильники, Il Paralume Marina.
Интерьер этой квартиры — смелая авторская концепция, где диалог с искусством и безупречное качество исполнения строительной компании «Олимпстройсервис» создали пространство, живущее в едином ритме с мегаполисом.
Гостевой санузел. Керамогранит, Max Fine. Подвесной светильник Labics от Castro Lighting. Зеркало, Tessarolo. Гостевой санузел. Керамогранит, Max Fine. Подвесной светильник Labics от Castro Lighting. Зеркало, Tessarolo.
Планировка. Планировка.
Фрагмент гостиной. Зеленое бархатное кресло, Flexform. За атмосферу отвечает торшер Cattelan Italia. Картина, Askeri Gallery.